• banner
  • banner
  • banner
  • banner
  • banner
联系我们
  • 广州东远输送设备制造有限公司

    电话(Tel):020 84900173

    传真(Fax):020 84900173

    联系人(contact):钟先生 13922182073

    邮箱(E-mail):aoe1982@126.com

    企业微信:aoeline

    公司QQ:157988177

    网址(Web):www.dyconveyor.com

    地址(Add):广州市南沙区东涌镇长莫村长莫公路2号

产品详细
    分享到:
    点击次数:2538  更新时间:2017-07-17   【打印此页】  【关闭

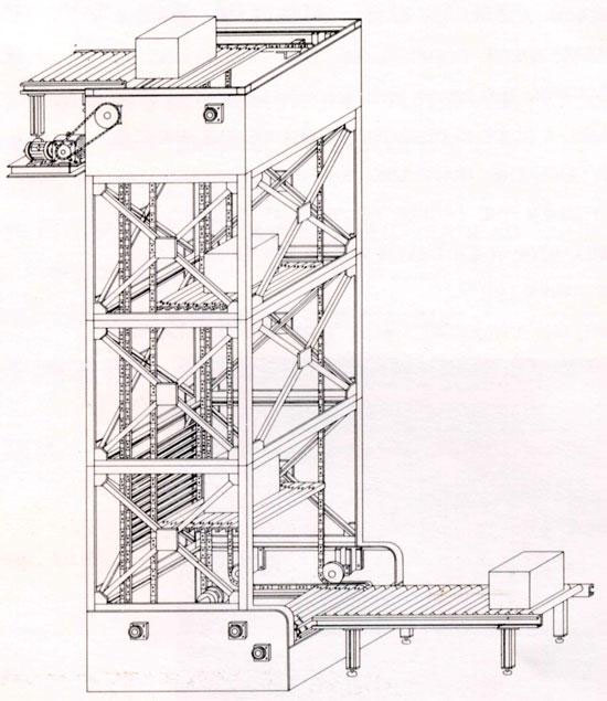
    电动升降机简介:Electrical Elevator

    电动升降机是通过驱动电机带动固定在链条或者皮带上的升降臂进行升降作业的专用设备,它升降高度范围广,升降稳定,无冲击。

    电动升降机一般可分为:连续式提升机、刚性链升降机、普通链升降机。

     

    电动升降机优点:


    1、连续式提升机

    连续式提升机是一种专供纸箱装产品、塑料周转箱等方形体物品进行升降输送的专业设备。该机的主要工作原理是利用四根闭合的链条传动,并在链条上间隔安装一定数量的承载板,传动链带动承载板完成进箱、升降、出箱和回程四个重复循环的步骤,进箱入口配有进箱自动控制滚筒输送线,用于配合升降主机间歇性进箱。

     

     

     

    2、刚性链升降机是由链条推、拉升降平台实现升降功能,两根链条像拉链样啮合,成一根坚固的柱状体,实现“推、拉”运动。刚性链的链板是挂钩形状,啮合两组链条的链板,即可成坚固的柱状体采用这样的升降机构使得传统的升降装置不可能实现的高速、高频率运行成为可能。

     

     

     

     


    3、普通链条升降机

    普通链条升降机主要由链条,减速电机,配重,导轨等组成。是一种以电能作为动力提升或装卸升降机械设备,移动方便、升降速度快、操作简便、作业面大,范围广、平衡性能好 适合在作业环境要求较高的场地安装使用。

     

    标准参数:

    最大载重

    最大速度

    最大加速度

    最小高度

    最大升降高度

    使用寿命

    电源

    500 kg

    60 m/min

    3.0 m/s²

    480MM

    12M

    10年以上

    380V50HZ

     

上一条:连续式提升机    下一条 :刚性链升降机
Copyright © 2017,   广州东远输送设备制造有限公司,   All rights reserved   广州网站建设:骏域网站建设专家   电脑版 | 手机版